La Calzada Peatonal Chivatito transforma la movilidad en Chapultepec combinando diseño modular, columnas inspiradas en la naturaleza y colaboración artística de Gabriel Orozco. Desde Proyeco, realizamos el análisis de su ejecución técnica y estructural, así como de su impacto en el espacio urbano.
En el corazón del Bosque de Chapultepec, la nueva Calzada Peatonal Chivatito redefine la forma de conectar movilidad y espacio público. Un proyecto que no solo mejora la movilidad peatonal entre Polanco, Reforma y la Segunda Sección del Bosque; sino que también es una muestra viva de lo que sucede cuando la arquitectura y el arte dialogan.
Diseñada con la visión artística de Gabriel Orozco, uno de los artistas mexicanos más influyentes de nuestra era, y ejecutada con precisión estructural por Proyeco. La calzada destaca por su singular geometría modular y su integración con el entorno natural.
Un diseño modular que potencia la movilidad y activa el espacio urbano
La calzada está pensada en módulos de 8 metros, llenos de curvas, círculos y arcos que no solo generan belleza, sino también estabilidad. Tres desembarques clave conectan al usuario con zonas emblemáticas como:
- El Parque Rosario Castellanos
- La entrada por Avenida de los Compositores
- El acceso al Parque Ecológico junto al Auditorio Nacional
Así, esta disposición activa áreas olvidadas, mejora los trayectos peatonales y abre nuevos circuitos para ciclistas y paseantes.
Desembarque parque ecológico junto al Auditorio Nacional
Desembarque en el Parque Rosario Castellanos
Desembarque en la Avenida de los Compositores
💡 Dato curioso: ¿sabías que se exploraron 8 propuestas distintas de diseño antes de definir la geometría final de columnas y arcos?
Fases del proyecto y ejecución estructural
El proyecto fue dividido en dos fases:
- La primera fase corresponde al tramo de calzada peatonal que uno el Estacionamiento Ecológico con el Parque Rosario Castellanos por otro.
- La fase 2 corresponde al tramo de calzada que une el Parque Rosario Castellanos con el desembarque en Av. De los Compositores.
Cada tramo incorpora soluciones estructurales específicas, adaptadas a su ubicación y al diálogo artístico del conjunto.
Columnas que evocan árboles: diseño estructural con inspiración natural
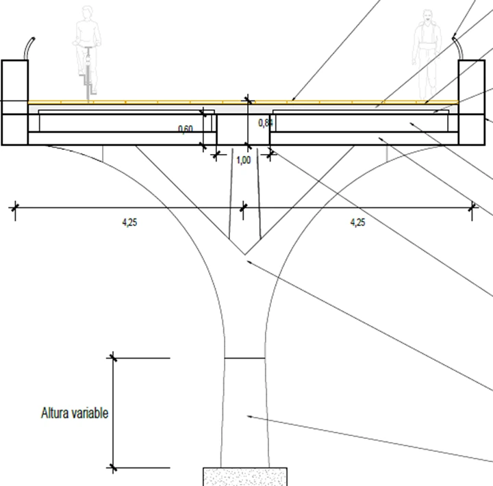
Uno de los elementos más visibles y fundamentales del proyecto Calzada Peatonal Chivatito son sus columnas. Estas piezas no solo cumplen una función estructural esencial —soportar las cargas de la pasarela y transmitirlas a la cimentación—, sino que también forman parte de la narrativa artística y geométrica concebida por el artista Gabriel Orozco. El resultado es una fusión única entre ingeniería y arte urbano, visible en cada uno de los 50 elementos que integran la estructura completa (38 columnas en la Fase 1 y 12 en la Fase 2).
Inspiradas en la forma de los árboles, las columnas de Chivatito buscan integrarse armónicamente con el entorno del Bosque de Chapultepec. Esta analogía se logra mediante la configuración de “ramales” que simulan ramas.
Dependiendo del punto estructural en el que se ubiquen, las columnas cuentan con:
- Dos ramales (tipo tridente): usadas en zonas donde se requiere mantener un gálibo libre para vialidades o espacios reducidos.
- Tres ramales: colocadas estratégicamente en áreas adyacentes a los óculos (huecos longitudinales).
- Cuatro ramales: la tipología más común, empleada en tramos de calzada regular.
Tipo de columna | Fase 1 | Fase 2 |
|---|---|---|
4 ramales | 33 | 12 |
3 ramales | 2 | 0 |
Tridente | 3 | 0 |
Estética geométrica con base estructural
Desde el inicio del proyecto, el diseño geométrico basado en el módulo de 8 metros fue un eje rector. Este módulo determina los radios de círculos y arcos, manteniendo una coherencia visual y estructural en toda la pasarela.
De igual forma, las columnas presentan cuartos de círculo en su parte exterior, y sus ramales interiores se diseñan con un ángulo de 45°, respondiendo tanto a exigencias estéticas como estructurales. En algunos casos, dos columnas están conectadas por arcos estructurales curvos, con un radio de 4 metros, que también respetan el patrón modular.
Tecnología y materiales
Cada columna está fabricada con placas de acero A-50, soldadas en taller con precisión. Este material ofrece una alta resistencia estructural, ideal para las demandas de carga y durabilidad de un proyecto de esta magnitud. Las imágenes de fabricación y despiece muestran el cuidado y detalle técnico que implica su producción.
De acuerdo con el planteamiento inicial, el diseño artístico inicial proponía puntos de contacto muy reducidos entre las columnas y el tablero superior. Sin embargo, para garantizar la seguridad estructural y responder a los momentos de inercia generados en esos nodos, el área de contacto se ajustó y amplió en la propuesta final.
Arte e ingeniería: una estructura que conecta más que espacios
El diseño de las columnas en la Calzada Peatonal Chivatito demuestra cómo la ingeniería puede dialogar con el arte sin sacrificar funcionalidad ni estética. Estas estructuras no solo sostienen la pasarela: sostienen una visión que busca reconectar la ciudad con su paisaje y a las personas con su entorno.
